2026.02.13
【2/22(日) 1日限りの限定開催!】建築相談会 開催!
人気の川口市栄町エリアで、建売物件プロジェクト開始!
現地にて注文住宅に関する「建築相談会」を、2月22日(日)の1日限定で開催いたします。
🏠️イベントのポイント
・「事前予約なし」でOK!お散歩や買い物のついでにフラッとお立ち寄りください。
・ネットには載っていない!「ここだけの情報」をご用意しています。
・どんな小さなお悩みも相談受付ております。
■開催概要
開催日: 2026年2月22日(日)
時間: 10:00〜17:00
場所: 埼玉県川口市栄町2-9-2
■物件概要
敷地面積:103.75㎡ (31.38坪)
用途地域:準工業地帯
建蔽率・容積率:60%/200%
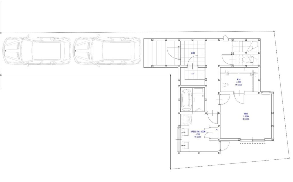
■1階平面図

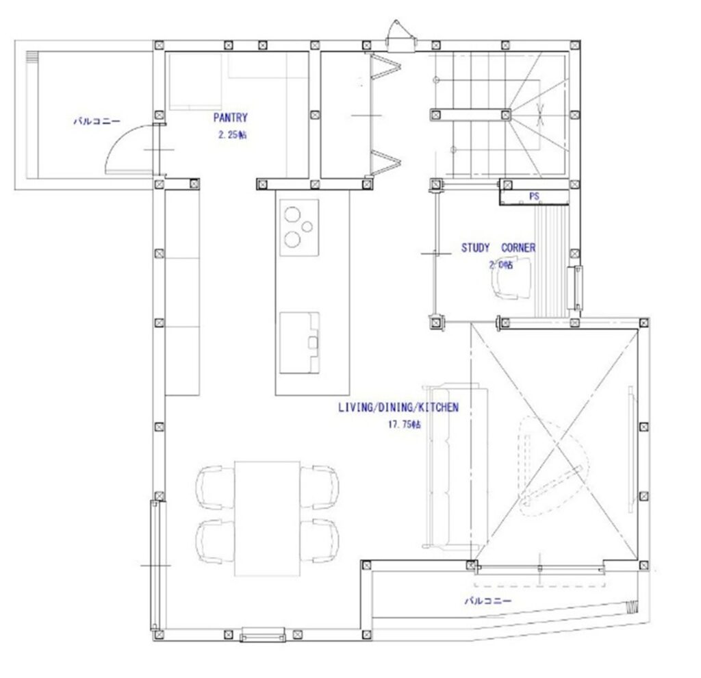
■2階平面図

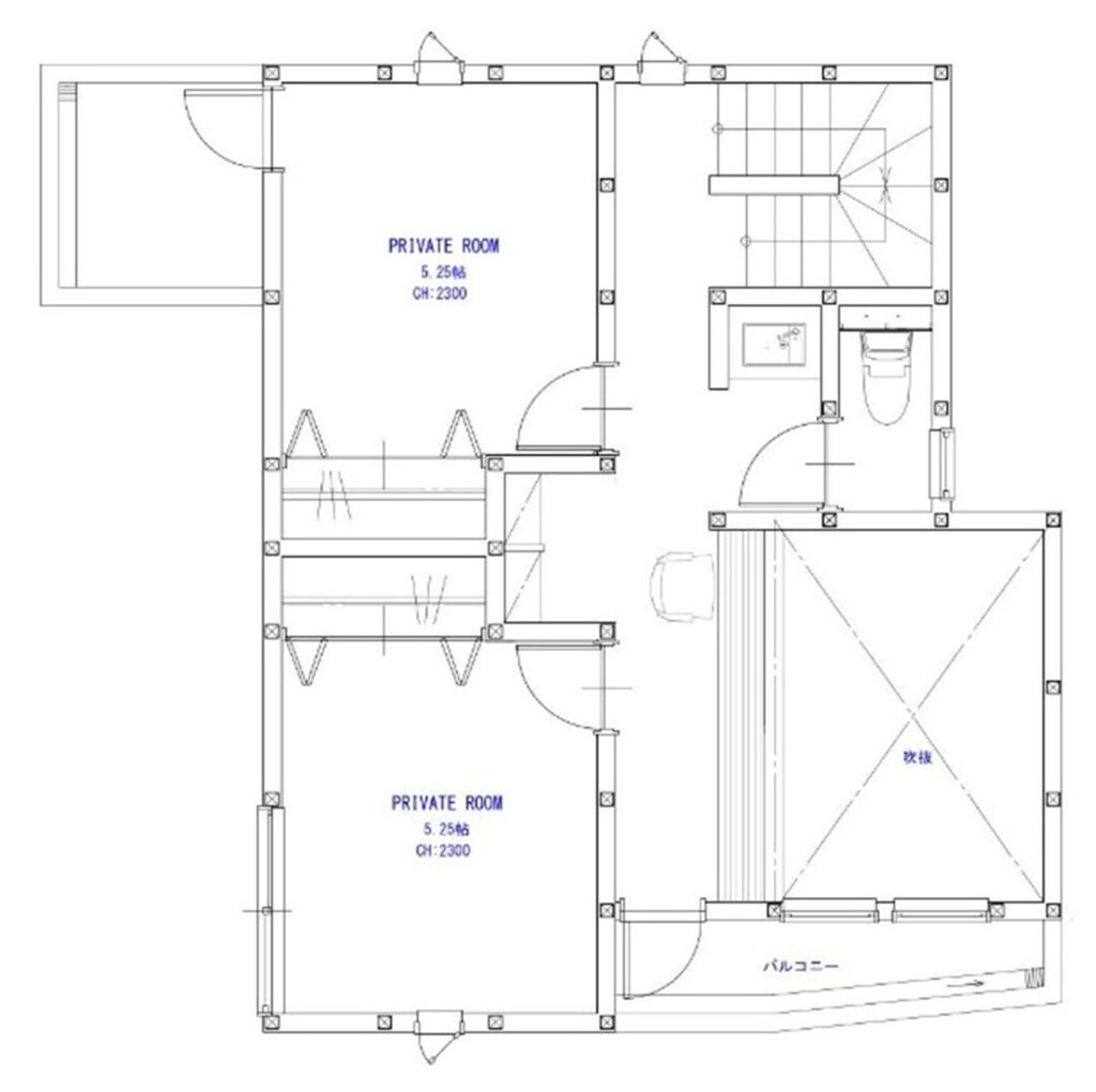
■3階平面図

■R階平面図

■参考プラン概要
階数:3階建て(2階+ルーフバルコニー)
1階床面積:42.22㎡
2階床面積:41.41㎡
3階床面積:31.88㎡
延べ床面積:115.51㎡ (34.87坪)
私たちスタッフが笑顔で皆さまをご案内いたします!
皆様のご来場を心よりお待ちしております!
■お問い合わせ先
建築市場株式会社 担当:眞嶋(まじま)
連絡先:r-majima@kenchiku-ichiba.com
電話番号:03-4212-3377
グループ会社
▼スカイフィールドコーポレーション株式会社ホームページ
https://www.sky-field.co.jp/
CONTACT お問い合わせ
ご相談、サービスについての
お問い合わせはこちら。